Steel Detailing And Design Services In Saudi

Dears,

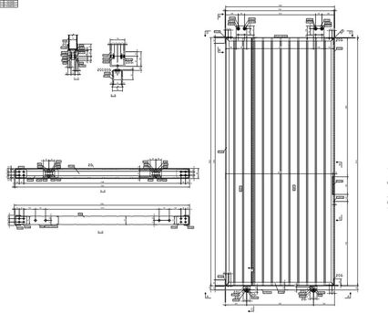
I am Senior Civil Engineer having strong experience in steel structure design and detailing. Can also provide 3D Models in Tekla, Autocad, Staad and Revit with complete BIM solution.

At present, I am looking for freelance projects, I have hand-on experience in various types of structures like P.E.B, Hot-Rolled, Pipe Rack Models, Residential, and Oil and Gas projects.

I am familiar with various design codes & standards such as ARAMCO, SAIPEM, OSHA, AISC, ACI, IS456, and SHMICO.

Please feel free to contact me.

Whatsapp and call on:
+966 57 639 2056
Riyadh, Construction, Steel Detailing And Design Services In Saudi Riyadh, Construction, Steel Detailing And Design Services In Saudi
Back Next