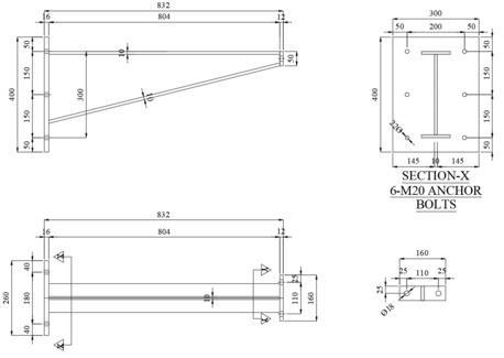
MONORAIL LOAD CALCULATIONS AND FABRICATION DRAWINGS | Steel Detailing | Riyadh KSA

Dear All,
I'm a structural engineer with 8+ years of experience specializing in steel structure design and detailing. I focus on delivering practical, code-compliant solutions for complex engineering challenges.

Software Proficiency
•Analysis & Design: Staad Pro, IDEA StatiCa, SAP
•Modeling: Tekla Structures.
•Drafting: AutoCAD for 2D detailing and documentation

Project Experience
I've successfully delivered projects across multiple sectors:
• Industrial: Pre-Engineered Buildings, pipe racks, process structures
• Energy: Onshore/offshore platforms, oil & gas facilities
• Commercial: Multi-story buildings, mixed-use developments
Standards & Codes
Experienced with international design standards including AISC, ASCE 7, ACI, and regional codes (SBC, ARAMCO, SAIPEM specifications).

Let's Connect
Currently accepting new freelance projects.
Contact: +966 57 639 2056 (WhatsApp)
Available for both short-term consultations and long-term project partnerships.

Al Aziziyah, Construction, MONORAIL LOAD CALCULATIONS AND FABRICATION DRAWINGS | Steel Detailing | Riyadh KSA Al Aziziyah, Construction, MONORAIL LOAD CALCULATIONS AND FABRICATION DRAWINGS | Steel Detailing | Riyadh KSA Al Aziziyah, Construction, MONORAIL LOAD CALCULATIONS AND FABRICATION DRAWINGS | Steel Detailing | Riyadh KSA Al Aziziyah, Construction, MONORAIL LOAD CALCULATIONS AND FABRICATION DRAWINGS | Steel Detailing | Riyadh KSA Al Aziziyah, Construction, MONORAIL LOAD CALCULATIONS AND FABRICATION DRAWINGS | Steel Detailing | Riyadh KSA Al Aziziyah, Construction, MONORAIL LOAD CALCULATIONS AND FABRICATION DRAWINGS | Steel Detailing | Riyadh KSA Al Aziziyah, Construction, MONORAIL LOAD CALCULATIONS AND FABRICATION DRAWINGS | Steel Detailing | Riyadh KSA
Back Next