Fabrication Drawings And BOQ Estimation Services

Dear All,

I am a Senior Structural Engineer with over 8 year's of extensive experience in steel structure detailing fabrication and design.
At present, I am looking for freelance works and would be happy to support your projects with my expertise.

My services includes:
⦁ 3D Modeling of structures
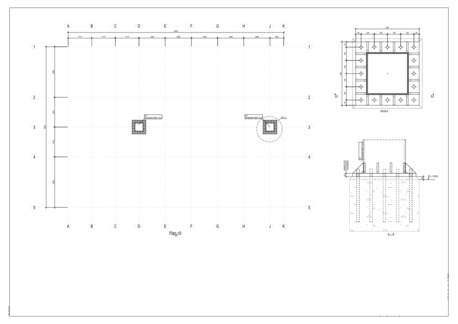
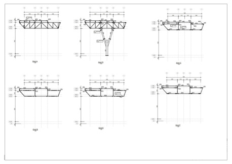
⦁ Fabrication Drawings
⦁ Design load calculations
⦁ Connection Design

I have hands-on experience working on a wide range of structures, including PEB sheds, hot-rolled steel buildings,
pipe racks, residential developments, and oil & gas projects.


I am also familiar with various design codes and standards, such as SBC 2018,
ASCE-07, AISC, ACI, IBC, MBMA, OSHA. ARAMCO and SAIPEM.


WhatsApp or call at: +966 57 639 2056 avail 24x7

Best regards,
Senior Structural Engineer
Dammam, Construction, Fabrication Drawings And BOQ Estimation Services Dammam, Construction, Fabrication Drawings And BOQ Estimation Services Dammam, Construction, Fabrication Drawings And BOQ Estimation Services Dammam, Construction, Fabrication Drawings And BOQ Estimation Services Dammam, Construction, Fabrication Drawings And BOQ Estimation Services Dammam, Construction, Fabrication Drawings And BOQ Estimation Services Dammam, Construction, Fabrication Drawings And BOQ Estimation Services
Back Next