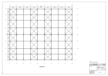
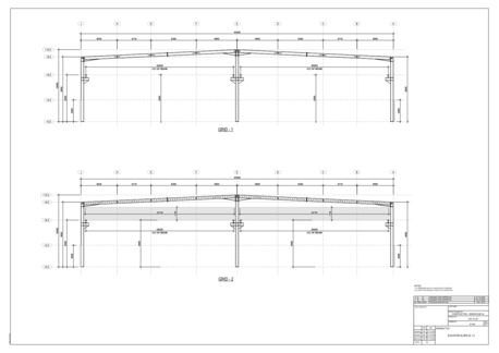
PEB Shed Design Load Calculation And Drawings - Saudi Arabia

Dear All.

I am a Senior Structural Engineer and full time freelancer with extensive experience in steel structure design, analysis, and detailing. I specialize in delivering efficient and code-compliant solutions for a wide range of industrial and commercial projects.

Core Expertise:

•Structural Analysis & Design: STAAD.Pro, ETABS, SAP2000
•Steel Connection Design: IDEA StatiCa
•3D Modeling & Fabrication Drawings: Tekla Structures, AutoCAD

I have hands-on experience across various project types, including PEB sheds, hot-rolled steel buildings, pipe racks, residential structures, and oil & gas facilities. I am detail-oriented, technically strong, and committed to delivering high-quality engineering solutions on time.

WhatsApp or call at: +966 57 639 2056 avail 24x7

Best regards,
Senior Engineer
Full Time Freelancer
Dhahran, Construction, PEB Shed Design Load Calculation And Drawings - Saudi Arabia Dhahran, Construction, PEB Shed Design Load Calculation And Drawings - Saudi Arabia Dhahran, Construction, PEB Shed Design Load Calculation And Drawings - Saudi Arabia Dhahran, Construction, PEB Shed Design Load Calculation And Drawings - Saudi Arabia Dhahran, Construction, PEB Shed Design Load Calculation And Drawings - Saudi Arabia Dhahran, Construction, PEB Shed Design Load Calculation And Drawings - Saudi Arabia Dhahran, Construction, PEB Shed Design Load Calculation And Drawings - Saudi Arabia Dhahran, Construction, PEB Shed Design Load Calculation And Drawings - Saudi Arabia
Back Next