AutoCAD Operator / QC- Mechanical Required

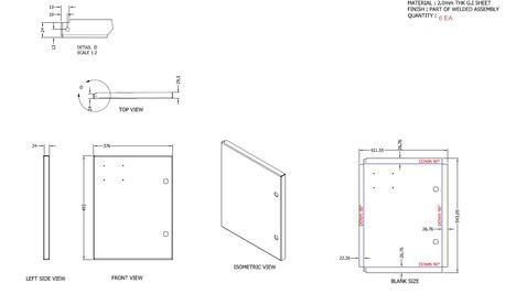
A leading metal fabrication company in Riyadh Exit 18 is looking for AutoCAD Operator & QC inspector (Experience +4 years) if you are able to recognize the attached drawing then you can proceed to send you CV (Don't Call) by WhatsApp or by mail.

The candidate should:

- Speak, Read and Write English fluently.
- AutoCAD Sheet metal knowledge is plus.
- Transferrable iqama.
- Driving License.
- Having his own car is a plus.

The positions available are:

- Designer
- QC Inspector
- CNC Programmer.

Once you will be selected you will be invited to attend a test in the company offices in AutoCAD and to fill the required forms.

Good Luck.

Sulai, Jobs, AutoCAD Operator / QC- Mechanical Required
Back Next