Precision Architectural Construction Drawing Services For Australian Building Standards

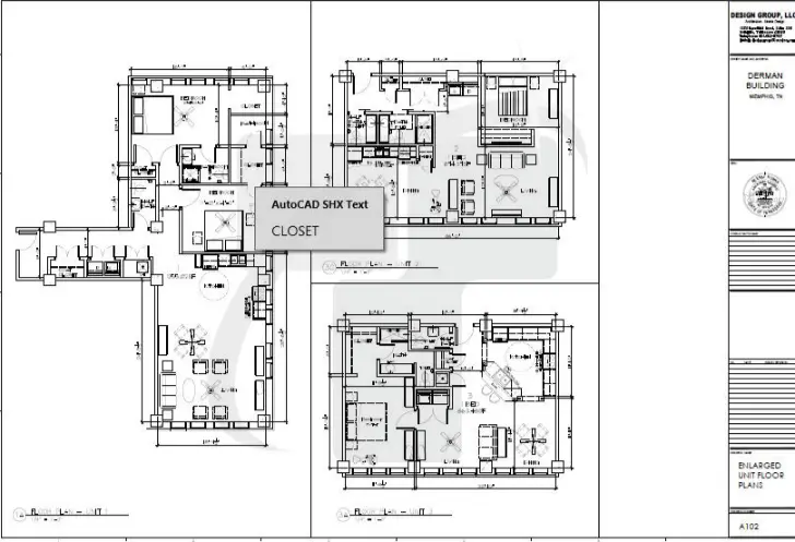
Professional Architectural Construction Drawing Services serve as the vital link between a creative vision and a structurally sound reality, ensuring every detail is captured for seamless onsite execution. By utilizing expert Architectural Drafting Services and precision CAD Drafting Services, developers can generate high-quality Construction Documentation that adheres to strict building codes. Whether your project requires a detailed Floor Plan Design, complex Architectural 2D Drafting, or advanced Revit Modeling Services, these solutions provide the technical clarity needed to minimize errors and reduce costs. Furthermore, specialized options like PDF to CAD Conversion allow for the modernization of legacy blueprints into versatile digital assets. Discover how these comprehensive drafting solutions can elevate your next building project Visit Us -: ?https://www.teslacad.com.au ....
Melbourne, Business, Precision Architectural Construction Drawing Services For Australian Building Standards
Back Next