1000 Sq. Meter, ???? Industrial Workshop Available – Bahrain

Industrial Workshop Available – Bahrain
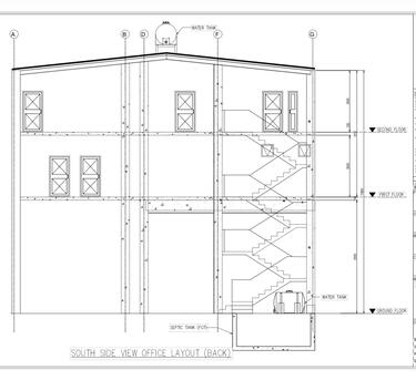
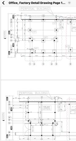
A newly completed industrial workshop is now available for lease or strategic partnership.
Located opposite Aluminium Bahrain (ALBA) along Askar Road, offering excellent accessibility for industrial operations and logistics.

We are currently seeking:
• Tenants (warehouse / industrial use)
• Local partners for potential collaboration

Suitable for:
• Storage and warehousing
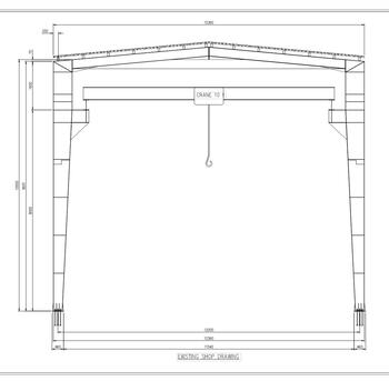
• Fabrication and industrial activities
• General commercial/industrial use

Property Details:
• Total Area: 1,000 sqm
• Prime and accessible location
• Future expansion plans available upon request

We also specialize in steel structure fabrication (hangars / industrial sheds), with supply capabilities across Saudi Arabia and the GCC.

Open to discussions—please feel free to connect or message directly @ 6695 2244 / 3995 1444
#Bahrain #Industrial #Warehouse #BusinessOpportunity #Manufacturing #GCC


Riffa, Warehouses, 1000 Sq. Meter,  ???? Industrial Workshop Available – Bahrain Riffa, Warehouses, 1000 Sq. Meter,  ???? Industrial Workshop Available – Bahrain Riffa, Warehouses, 1000 Sq. Meter,  ???? Industrial Workshop Available – Bahrain Riffa, Warehouses, 1000 Sq. Meter,  ???? Industrial Workshop Available – Bahrain Riffa, Warehouses, 1000 Sq. Meter,  ???? Industrial Workshop Available – Bahrain Riffa, Warehouses, 1000 Sq. Meter,  ???? Industrial Workshop Available – Bahrain Riffa, Warehouses, 1000 Sq. Meter,  ???? Industrial Workshop Available – Bahrain Riffa, Warehouses, 1000 Sq. Meter,  ???? Industrial Workshop Available – Bahrain
Back Next